情報更新日:2025年12月04日/広告有効期限:なし
表示閲覧回数(過去30日間):75
お急ぎの方はお電話からお気軽にどうぞ!
084-939-6784 営業時間 / 10:30〜17:30 定休日 / 水曜、日曜、祝日
>物件詳細情報
| 基本情報 | |
|---|---|
| 物件番号 | 10007805378 |
| 店舗形態 | 店舗, 事務所, 倉庫, 倉庫付事務所 |
| オススメ業種 | 塾・学校・教育関係, 事務所, 物販関係, 倉庫 |
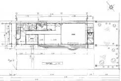
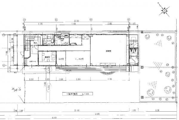
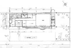
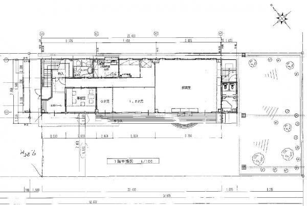
| 物件名 | Wiiver株式会社 高須ビル 1階 |
| 物件の状態 | 空き |
| 引越し時期 | 相談 |
| 契約形態と期間 |
定期契約期間:3年間再契約:可 |
| 所在地・交通 | |
|---|---|
| 所在地 | 広島県尾道市高須町5569-2 |
| 交 通1 | 山陽本線東尾道駅 徒歩13分 |
| 交 通2 | - |
| 賃料 | |
|---|---|
| 賃 料 | 242,000円(税込) |
| 敷 金 |
2ヶ月 |
| 礼 金 | 1ヶ月 |
| その他 | |
|---|---|
| 備考 | ●火災保険加入要 ●保証会社加入要 ●駐車場:柵を撤去することで園庭部分への駐車が可能(撤去費用は借主負担) ※利用時間:7:00~20:00(相談可) ※室内据え付けの物品は全てサービス品です |
| 建物 | |
|---|---|
| 建物構造 | 鉄骨造 |
| 建物階建て |
地上2階 |
| 施工年月 | 2010(平成22)年 03月 |
| 募集物件の階数 | 地上 1階 1階号室 |
| 契約面積 | 156.08m2(47.21坪) |
| 用途地域 | 準工業 |
| 設備 | |
|---|---|
| 水道 | 公営 |
| 下水道 | 公共下水 |
| ガス | LPG |
| エレベータ | 無 |
| エアコン | 有 |
| トイレ | 有/専用 |
| 給湯室 | 無 |
| キッチン | 有/専用 |
| ネット環境 | 無 |
| セキュリティ | 無 |
| 利用時間 | 時間制限有 |
| シャッター | 無 |
| 照明設備 | 有 |
| 駐車場 | |
|---|---|
| 状 況 | 空有無料 |
| 取引情報 | |
|---|---|
| 取引態様 | 専任 |
| 客付 | 不可 |
この物件をチェックした人はこんな物件も見ています
- 1棟貸し・分割貸しいずれも相談可です☆瀬戸内海(尾道水道)オーシャンフロント物件☆業種業態ご相談ください☆1階のみ賃貸中(2025年11月末解約予定)☆※分割貸し時の賃料は備考欄に記載

広島県尾道市土堂1-11-17
543.72m2(164.48坪)
627,000円(税込)
- 敷地内ゴミステーション完備♪

広島県世羅郡世羅町甲山258-4
40.75m2(12.33坪)
55,000円(税込)
- スケルトン物件です

広島県福山市元町13-5
345.31m2(104.46坪)
660,000円(税込)
- 神辺町平野の貸土地です♪登記地目:雑種地です♪

広島県福山市神辺町平野
1,570m2(474.93坪)
150,000円(税込)
- 教育施設・福祉施設として利用されてきた物件です☆業種業態相談可☆

広島県尾道市高須町5569-2
156.08m2(47.21坪)
242,000円(税込)
今日チェックした物件
お急ぎの方はお電話からお気軽にどうぞ!
084-939-6784 営業時間 / 10:30〜17:30 定休日 / 水曜、日曜、祝日


084-939-6784



















084-939-6784