情報更新日:2025年03月17日/広告有効期限:なし
表示閲覧回数(過去30日間):58
お急ぎの方はお電話からお気軽にどうぞ!
084-939-6784 営業時間 / 10:30〜17:30 定休日 / 水曜、日曜、祝日
>物件詳細情報
| 基本情報 | |
|---|---|
| 物件番号 | 10007805355 |
| 店舗形態 | 事務所, 店舗 |
| オススメ業種 | 事務所, 塾・学校・教育関係, 美容関係, サービス業 |
| 物件名 | 第1向栄ビル 3階北側 |
| 物件の状態 | 入居中 |
| 引越し時期 | 2025(令和7)年04月上旬 |
| 契約形態と期間 |
普通契約期間:2年間 |
| 所在地・交通 | |
|---|---|
| 所在地 | 広島県尾道市土堂2-8-11 |
| 交 通1 | 山陽本線尾道駅 徒歩12分 |
| 交 通2 | - |
| 賃料 | |
|---|---|
| 賃 料 | 132,000円(税込) |
| 敷 金 |
3ヶ月 |
| 共益費・管理費 | 22,000円(税込) |
| 礼 金 | 2ヶ月 |
| その他 | |
|---|---|
| 備考 | ●火災保険加入要 ●保証会社加入要 ●水道料金は共益費に含みます(利用量によっては別途請求の場合があります) ※敷地内駐車場は月極でも募集中のため希望台数の空き確認要 2F駐車場:並列22,000円/台(空き4台) 1F駐車場:2台縦列33,000円/区画(空き1区画) |
| 建物 | |
|---|---|
| 建物構造 | 鉄筋コンクリート造 |
| 建物階建て |
地上4階 |
| 施工年月 | 1973(昭和48)年 01月 |
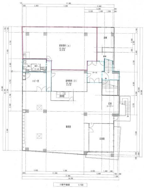
| 募集物件の階数 | 地上 3階 北側号室 |
| 契約面積 | 101.86m2(30.81坪) |
| 用途地域 | 商業地域 |
| 設備 | |
|---|---|
| 水道 | 公営 |
| 下水道 | 公共下水 |
| エレベータ | 無 |
| トイレ | 有/共用 |
| 駐車場 | |
|---|---|
| 状 況 | 空有 |
| 駐車料金 | 22,000円(税込) |
| 空き台数 | 4台 |
| 取引情報 | |
|---|---|
| 取引態様 | 媒介 |
| 客付 | 不可 |
この物件をチェックした人はこんな物件も見ています
- 1棟貸し・分割貸しいずれも相談可です☆瀬戸内海(尾道水道)オーシャンフロント物件☆業種業態ご相談ください☆1階のみ賃貸中(2025年11月末解約予定)☆※分割貸し時の賃料は備考欄に記載

広島県尾道市土堂1-11-17
543.72m2(164.48坪)
627,000円(税込)
- スケルトン物件です

広島県福山市元町13-5
345.31m2(104.46坪)
660,000円(税込)
- 敷地内ゴミステーション完備♪

広島県世羅郡世羅町甲山258-4
40.75m2(12.33坪)
55,000円(税込)
- 神辺町平野の貸土地です♪登記地目:雑種地です♪

広島県福山市神辺町平野
1,570m2(474.93坪)
150,000円(税込)
- ベイタウン尾道内の貸倉庫に空きが出ました☆事務所付きの貸倉庫です☆業種業態ご相談ください☆

広島県尾道市東尾道7-8
606.81m2(183.56坪)
385,000円(税込)
今日チェックした物件
お急ぎの方はお電話からお気軽にどうぞ!
084-939-6784 営業時間 / 10:30〜17:30 定休日 / 水曜、日曜、祝日


084-939-6784

















084-939-6784