情報更新日:2026年02月11日/広告有効期限:なし
表示閲覧回数(過去30日間):14
お急ぎの方はお電話からお気軽にどうぞ!
084-939-6784 営業時間 / 10:30〜17:30 定休日 / 水曜、日曜、祝日
>物件詳細情報
| 基本情報 | |
|---|---|
| 物件番号 | 10007805260 |
| 店舗形態 | 事務所, 倉庫付事務所, 一棟貸し, 一棟貸し |
| オススメ業種 | 事務所, 倉庫, 塾・学校・教育関係, アミューズメント |
| 物件名 | 尾道市高須町貸事務所 一棟 |
| 物件の状態 | 空き |
| 引越し時期 | 相談 |
| 契約形態と期間 |
普通契約期間:2年間 |
| 所在地・交通 | |
|---|---|
| 所在地 | 広島県尾道市高須町590-1 |
| 交 通1 | 山陽本線東尾道駅 徒歩16分 |
| 交 通2 | - |
| 賃料 | |
|---|---|
| 賃 料 | 220,000円(税込) |
| 敷 金 |
600,000円 |
| 礼 金 | 440,000円(税込) |
| その他 | |
|---|---|
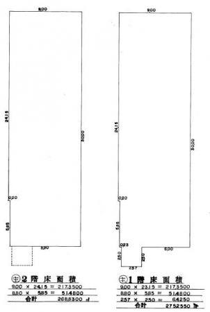
| 備考 | ●火災保険加入要 ●保証会社加入要 ※建て壊しも検討中の為、原則1~2年の契約期間となります(延長相談可) ※エアコン・照明・什器等、据え付けの物品は全てサービス品です ※用途地域:準住居・第1種住居 ※契約面積内訳:事務所棟544.08㎡ 離れ平家31.96㎡ |
| 建物 | |
|---|---|
| 建物構造 | 鉄筋コンクリート造 |
| 建物階建て |
地上2階 |
| 施工年月 | 1974(昭和49)年 03月 |
| 募集物件の階数 | 地上 1.2階 1号室 |
| 契約面積 | 576.04m2(174.25坪) |
| 用途地域 | 準住居 |
| 設備 | |
|---|---|
| 水道 | 公営 |
| 下水道 | 浄化槽 |
| エレベータ | 無 |
| エアコン | 有 |
| トイレ | 有/専用 |
| 給湯室 | 有/専用 |
| キッチン | 無 |
| ネット環境 | 無 |
| セキュリティ | 無 |
| シャッター | 有/自動 |
| 照明設備 | 無 |
| 内装業者指定 | 無 |
| 駐車場 | |
|---|---|
| 状 況 | 空有無料 |
| 取引情報 | |
|---|---|
| 取引態様 | 媒介 |
| 客付 | 不可 |
この物件をチェックした人はこんな物件も見ています
- スケルトン物件です

広島県福山市元町13-5
345.31m2(104.46坪)
660,000円(税込)
- 敷地内ゴミステーション完備♪

広島県世羅郡世羅町甲山258-4
40.75m2(12.33坪)
55,000円(税込)
- 元飲食店ですが現在はスケルトンです♪飲食店や事務所向きです♪

広島県尾道市久保2-8-10
20.64m2(6.24坪)
55,000円(税込)
- 原則短期契約(~2年程度)物件☆高須町に事務所・倉庫物件の空きが出ました☆事務所・倉庫以外の業種業態もご相談ください☆

広島県尾道市高須町590-1
576.04m2(174.25坪)
220,000円(税込)
- 引野町のテナントに空き予定が出ました☆角地物件☆視認性の高い+比較的交通量が多い立地です☆業種業態は広く相談に乗れますので是非ご相談ください☆

広島県福山市引野町2-1-9
118m2(35.70坪)
300,000円(税込)
今日チェックした物件
お急ぎの方はお電話からお気軽にどうぞ!
084-939-6784 営業時間 / 10:30〜17:30 定休日 / 水曜、日曜、祝日


084-939-6784



















084-939-6784